新築一戸建て
この物件は125人の方が見ています

静岡市葵区大岩3丁目

4,990万円
駐車場2台可 4LDK以上

長期優良住宅

物件概要

所在地 静岡市葵区大岩3丁目 価格 4,990 万円
交通

バス停大在家 まで 徒歩2分

土地権利 所有権
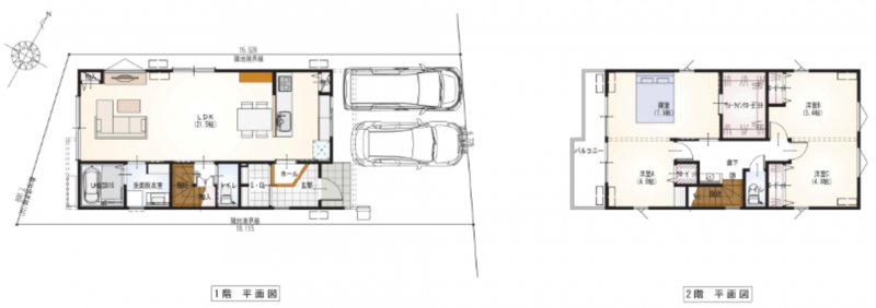
接道状況 東側 公道4.5m 間口約6.7m
小学校区 安東 (850m) 中学校区 安東 (600m)
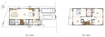
間取り 4LDK 築年数 2026年(令和8)2 月
土地面積 実測 113.73㎡(34.40坪) 建物面積 108.47㎡ (32.81坪)
地目 宅地 私道負担
都市計画 市街化区域 用途地域 2種住居
建ぺい率 60% 容積率 180%
上水道 公共 下水道 公共
ガス 都市ガス 現況 建築中
構造および階数 木造 地上2階建 駐車場 有 2台
取引態様 仲介 明渡 相談
建築確認番号 第2025確認建築静建住ま06528号
設備・条件 システムキッチン、カウンターキッチン、食器洗浄乾燥機、シャンプードレッサー、洗浄便座、浴室乾燥機、追い炊き、複層ガラス、Wクロゼット、モニタ付インターホン、駐車場2台分、床下収納、トイレ2箇所、浄水器、太陽光発電システム、シャッター雨戸
備考
不動産用語集

弊社では、売主様に配慮し、物件所在地を掲載していない物件がございます。
詳細については、お気軽にお問合せください。

(物件番号: 3004438)

【更新年月日】2026年04月18日 【次回更新日】2026年05月18日

ログイン LOGIN

メールアドレス
パスワード

パスワードを忘れた方はこちら

静岡市葵区の不動産売買情報

HPを見たと言ってお気軽にお問い合わせください

無料相談・お電話窓口

0800-200-5581

営業時間:9:45~18:00 / 定休日:火曜日/水曜日

株式会社ヒノキヤグループ

静岡県静岡市葵区新伝馬2丁目3-8